Er I på udkig efter et stort sommerhus til jeres næste familieferie med plads til både afslapning og aktiviteter for hele familien? Så er dette skønne, stråtækte feriehus på Nygårdsvej 34 et nærmere kig værd. Sommerhuset har plads til hele 12 feriegæster samt 2 hunde, som kan nyde en dejlig ferie blot 200 meter fra den kilometer lange sandstrand. Her er der også et dejligt udespa, hvor I kan nyde det boblende, varme vand efter en aktivitetsrig feriedag.
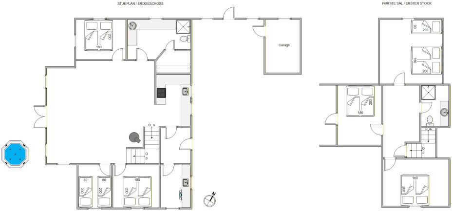
12-personers sommerhus med brændeovn
Feriehuset har et dejligt køkken/alrum med klinkegulve med gulvvarme, hvor familien kan samles til et godt måltid mad efterfulgt af hyggelige stunder foran brændeovnen. Mens brændeovnen knitrer i baggrunden, kan I streame jeres yndlingsfilm til fjernsynet via. feriehusets Chromecast eller Apple-tv.
Sommerhusets 12 sovepladser er fordelt på 6 gode soveværelser, hvoraf de 3 af dem ligger på 1. salen. Værelserne er indrettet med komfortable senge, og også her er der gulvvarme. Som et ekstra plus har det ene værelse på 1. salen udgang til en skøn, overdækket altan.
Nygårdsvej 34 – Aktivitetshus med sauna, bordtennis og billard
Feriehuset byder på aktiviteter for hele familien med både bordtennis og billard. Hvad med at finde familiens ultimative mester i en spændende turnering på en blæsende efterårsdag?
Sommerhuset har 2 badeværelser, hvoraf det ene ligger i feriehusets stueplan. Her finder I desuden feriehusets sauna, som er dejlig afslappende efter en oplevelsesrig feriedag i naturen. Der er gulvvarme på badeværelserne, og sommerhuset har desuden både vaskemaskine og tørretumbler.
Udespa og privat beliggenhed kun 200 meter fra stranden
Sommerhuset ligger på en skøn naturgrund på 2312 m2, som er afskærmet fra de omkringlæggende feriehuse.
Rundt om feriehuset finder I flere terrasser, så I altid kan finde et læfyldt sted på en af de afskærmede eller overdækkede terrasser. Her kan hele familien nyde solen, mens de yngste leger på den store naturgrund, hvor både sandkasse og gyngestativ står klar til dem. Her kan I også slappe af i sommerhusets skønne udespa. Der er derudover en udendørs bruser, der kan benyttes året rundt. Desuden har sommerhuset en 11 kWh ladestander, så jeres elbil kan oplades direkte ved sommerhuset. Husk at medbringe eget kabel.
Feriehuset ligger blot 200 meter fra det fantastiske Vesterhav, som er et besøg værd, uanset hvilken årstid I holder ferie på Vestkysten. I området er der gode naturstier, hvor hundene kan luftes med en lang gåtur i den friske havluft.
Det siger vores gæster om sommerhuset BB1217
sagde Gast, Deutschland
Das Ferienhaus bietet genug Raum für eine größere Familie, die entspannt Urlaub machen möchte.
Es ist Platz für das Miteinander, es gibt aber auch Rückzugsmöglichkeiten.
sagde Anke Freericks, Deutschland
Ein sehr geräumiges Ferienhaus mit zwei großen Badezimmern und einer gut ausgestatteten Küche. Liegt in einem kleinen Wäldchen versteckt nahe an den Dünen. Die Sauna funktioniert gut. Die Betten sind sehr bequem.
Für die Terrasse gibt es ausreichend Möbel und Auflagen.
Was wir als deutlichen Nachteil empfunden haben, sind die Lichtverhältnisse im Haus. Es ist so dunkel, dass wir im Juni! beim Frühstücken Licht anmachen mussten.
Esmark sagde
Es freut uns, dass der Hauseigentümer umgehend reagiert und mitgeteilt hat, dass die Bäume rechtung Süden im Herbst entfernt werden und neue Kleine gepflanzt werden.
sagde Stefau Dams, Deutschland
Das Haus ist seht zu empfehlen. Alles da, was man sich wünscht.
Se flere anmeldelser
sagde Gast, Deutschland
Tolles Haus dessen Bad noch Potenzial hat und eine super Lage hat.
sagde Sabine Bohne, Deutschland
Ein sehr großes geräumiges haus.haben uns sofort wohlgefühlt.auch an die kleinen ist gedacht worden Luis hatte viel Spass.
sagde Patrik Schwarz, Deutschland
So ein hervorragend ausgestattest Ferienhaus findet man selten . Es gibt nichts was fehlen könnte,alles ist sauber und ausreichend vorhanden!!
sagde Patrick Cordes, Deutschland
Ruhige Lage,
Geräumig genug Platz,
Schöner außen Bereich
sagde Andrea Hahn, Deutschland
Wir haben das Haus mit 10 Leuten genutzt und waren von der Ausstattung der Küche angenehm überrascht. Alles war in einer ausreichenden Menge vorhanden. Der Wohn- und Essbereich ist sehr großzügig angelegt und die Möbel auf der Terrasse waren auch in einem guten Zustand, inkl. der Auflagen. Wir haben uns alle sehr wohl gefühlt.
sagde Susanne Borchers, Deutschland
Es handelt sich um ein schönes, sehr geräumiges Ferienhaus, welches Platz für vier Generationen bietet.
Der Wohn- und Essbereich sind großzügig gestaltet, sodass man es sich gemütlich machen kann. Die Kiefern um das Haus herum bieten zwar Schutz, aber im Herbst und um die Mittagszeit herum, schafft die Sonne es nicht mehr, den Hauptraum mit Licht zu durchfluten.
Der Küchenbereich verfügt über ausreichend Staumöglichkeiten. Geschirr und Bestecke sind genügend vorhanden.
sagde Angela Brendel, Deutschland
Ein wunderschönes Ferienhaus, in den Dünen gelegen, umgeben von einem kleinen Kiefernwäldchen, sodass der Eindruck entsteht, dass man ganz alleine ist. Auf der winderschön angelegten Terrasse steht sogar ein Webergrill
sagde Hartmut Krampitz, Deutschland
Tolles geräumiges Ferienhaus (Zimmer sind größer als üblicherweise), Kochen mit Induktion, sparsam durch Wärmepumpe auch für die Warmwasserversorgung…
Gute Ausstattung und Kinderstühle auch für größere Kinder. Der Innenhof lädt zum spielen ein. Kinder können hier auch prima Fahrrad fahren lernen.
sagde Gast, Deutschland
Ein schönes Ferienhau – gut gelegen – in unmittelbarer Nähe zum Stand. Es ist geeignet für Familien mit mehreren Erwachsenen und Kindern. Neben dem Strand bietet das Haus auch nette Extras wie z.B. eine Sauna. Mit den vorhandenen Spielsachen wissen die Kinder etwas anzufangen (Playstation 4, Nintendo Wi, Billardtisch, Tischtennisplatte). Alles funktionsfähig und großteils vollständig. Wir waren rundum zufrieden (3 Familien mit jeweils 1-2 Kindern).
sagde Sabine Faber, Deutschland
Ferienhaus ist geräumig für 8 Erwachsene, 2 Kleinkinder und ein Baby.
Die Einrichtung ist schön und zweckmäßig, die Betten sind super.
Es gibt genügend Geschirr und Besteck und große Tassen. ( Die hatten wir in anderen Häusern nicht.)
Draußen hört man das Meer rauschen.
Das Haus ist von Hagebuttensträuchern und Bäumen
umgeben und nicht einsehbar.
Sehr zu empfehlen.
sagde Anika Jacobsen, Deutschland
Ein super schönes Ferienhaus in dem man sich sofort sehr wohl gefühlt hat!
Wir hatten eine wundervolle und erholsame Woche mit der ganzen Familie!
Wir können dieses tolle Haus weiterempfehlen.
Perfekt für 2-3 Familien!
Super Ausstattung/tolle Terrasse mit Grill/Schaukeln und Sankasten für die Kinder und auch im Haus gab es vieles für die Kinder von Lego über Puzzle/Spiele usw…
sagde Florian Albrecht, Deutschland
Super ausgestattet, PS4 etc für Kids verfügbar, Klasse Ausstattung in der Küche und allgemein auch sehr gut
sagde Hanne Nørskov, Danmark
Det er et meget velindrettet hus med rigeligt service til en stor familie.
sagde Holger Thimm, Deutschland
Schönes Ferienhaus für eine größere Gruppe. Strandnah.
sagde Gast, Deutschland
Ideal für mehrere Familien!
sagde Gast, Deutschland
Unser Aufenthalt in diesem Ferienhau war einfach wunderbar. Es war mehr als genug Platz und es wird super gepflegt. Die Ausstattung war perfekt und die Terrasse bot eine herrliche Ruhe. Bei schlechten und windigen Wetter konnten wir auf die andere Seite unter die Überdachung. Die Lage direkt am Strand machte unseren Urlaub einfach perfekt. Wir kommen gerne wieder!
Wir waren mit 4 Personen und 3 Hunden dort. Alle rundum zufrieden.