Max 2
Husdyr tilladt
Rygning tilladt
Ladning
Ingen opladning af elbil
Grøn strøm
Gæsterne siger: icon icon

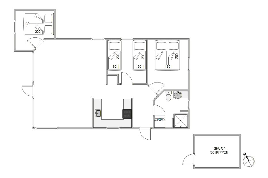
Hvis I ønsker at tilbringe jeres ferie i et hyggeligt feriehus ved den danske Vestkyst, så er feriehuset på Ahornallé 20 i Lodbjerg Hede måske lige noget for jer. Her får I et charmerende og veludstyret feriehus, hvor hyggen er i højsædet, samtidig med at I bliver tilbudt masser af privatliv. Godt beskyttet af træer og lidt skjult, omgivet af smuk natur, tilbyder dette feriehus i rolige omgivelser plads til op til 6 personer på 72 m².

Smuk indretning og masser af lys

Hele feriehuset er meget lyst indrettet, hvor de mørke møbler skaber et godt modspil til den ellers lyse stil. De store vinduer lukker masser af lys ind og giver en flot udsigt til den omkringliggende natur. Hele køkkenalrummet føles større, end det egentlig er, og det skyldes den gode indretning og loftet, som går hele vejen til kip. Stueafdelingen er hyggelig og velegnet til en aften foran fjernsynet eller med en god bog. Her er der mulighed for at streame jeres yndlingsserie via et Chromecast.

Det veludstyrede køkken er stort nok til, at I kan lave mad sammen. For at I ikke skal spilde jeres ferie på at vaske op, er der en opvaskemaskine til rådighed. Efter en begivenhedsrig feriedag kan I trække jer tilbage til de 3 soveværelser og falde i søvn i de gode dobbeltsenge.

Når I træder ind i badeværelset om morgenen, kan jeres fødder nyde det dejligt varme gulv, fordi badeværelset har gulvvarme. For at gøre det nemmere for jer at pakke til ferien, har feriehuset en vaskemaskine, så I altid har rent tøj til rådighed. En energibesparende luft-til-luft-varmepumpe sikrer behagelige temperaturer året rundt.

Stor terrasse på Ahornallé 20

Fra stuen har I direkte adgang til en delvist overdækket terrasse, hvor I kan nyde solen hele dagen. Hvis I foretrækker skygge, kan I opholde jer på den overdækkede del af terrassen. Hvis I elsker at grille, er der også gode muligheder for det her ved huset. På den 2.465 m² store grund har børnene en stor legeplads i naturen.

Mange muligheder for aktiviteter i området

I det naturskønne område på Lodbjerg Hede er der flere gode cykel- og vandrestier. Der er kun 1.800 meter til Vesterhavet, hvilket er ideelt til lange strandture. Den hyggelige by Søndervig er en livlig ferieby med mange indkøbsmuligheder, restauranter og aktiviteter for hele familien og ligger cirka 4.500 meter væk. Et godt alternativ i regnvejr er det store vandland Lalandia, hvor der også er en indendørs legeplads.

I nærheden finder I også en 18-hullers golfbane, som kan spilles på hele året, et par fiskesøer og en strudsefarm, der er åben for besøgende. I Kloster kan I lave jeres egne stearinlys, og i den hyggelige købstad Ringkøbing kan I tage på shoppingtur og besøge Ringkøbing Fjord.

Det siger vores gæster om sommerhuset K6791

DK
D.
sagde , Danmark

Dejligt lyst og velindrettet sommerhus.
Velfungerende køkken med alt udstyr dog ikke mikroovn.



Soverum:
Bolig-/Grundareal:
Byggeår:2023

Henter data...

Se priser
Persondata- og cookiepolitik
Søger...