Esmark Feriehusudlejning
+45 69 15 96 11
[email protected]
esmark.dk
esmark.de

Skiftedag: FredagHus K6539, Birkealle 4, Lodbjerg Hede

Et særdeles læfyldt feriehus på Lodbjerg Hede med en skøn terrasse på flere sider af huset og med en lys indretning samt et vildmarksbad. Der er træer hele vejen rundt om huset, som giver både fred og ro samt beskyttelse for vinden. Så ønsker du en fredelig ferie væk fra hverdagens stress og jag, er dette hus ideelt.

Et charmerende hus og med en hyggelig og lys indretning

Huset er charmerende og helt lyst indrettet og fremstår indbydende, på trods af de mange træer omkring huset. En skøn kombination! Den flotte brændeovn er populær mange af årets måneder, især efter en lang travetur i området eller ved Vesterhavet. Køkken og spiseafdelingen er tæt forbundet, så man kan nyde tiden og ferien sammen alle sammen.

Her er virkelig lyst og indbydende, og der er skabt en skøn atmosfære, hvor I med sikkerhed vil føle jer veltilpas. Til at varme rummet op, har I udover brændeovnen også en effektiv luft-til-luft varmepumpe, der også kan sørge for en behagelige indetemperatur og indeklima. Grundet totalrenovering i 2020 står huset skarpt og moderne, og der er taget mange gode valg, der alt i alt er med til skabe en dejlig og hyggelig atmosfære.

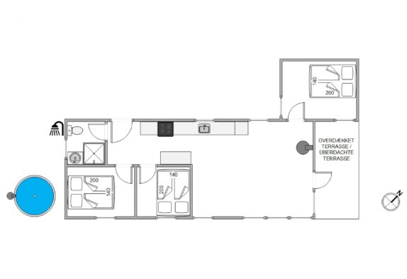
Når I skal til at sove, kan I fordele jer i husets 3 soveværelser. Dette betyder, at I snildt kan komme til huset op til 5 personer, og huset egner sig derfor godt til den mindre familie eller parret. Sommerhusets tillader også at I kan medbring 1 hund, der helt sikkert vil elske en tur til den danske vestkyst

Et feriehus på en læfyldt grund med  ny terrasse, vildmarksbad og udebruser

Der er flere lækre terrasser til huset på Lodbjerg Hede en delvist overdækket er placeret mod øst, mod syd og mod nord er terrassen åben og den nordlige er delvist afskærmet. Et perfekt tilholdssted for både børn og voksne, som ønsker sig masser af den friske luft og læ. Har man hund med på ferie, er den store grund skøn at opholde sig på, for hele familien. Er I til cykel– eller traveture, er områdets store stisystem lige uden for døren.

Det er også udenfor at I finder feriehusets vildmarksbad og udebruser, som bidrager til en ekstra god feriefølelse, hvor I bare kan slappe helt af.

 

Hus info 2025

Soverum: 3  
Grundareal: 2,865 m²  
Sovepladser: 5  
Indkøb: 1200 m  
Boligareal: 75 m²
Byggeår: 1976
Strand: 1600 m
Husdyr: Ja, max 1



Bestil huset nu på www.esmark.dk. Indtast husnummer K6539 i kvik søg boksen på forsiden.
 

Bestil huset nu på www.esmark.dk. Indtast husnummer K6539 i kvik søg boksen på forsiden.

17. 10. 2025