Esmark Feriehusudlejning
+45 69 15 96 11
[email protected]
esmark.dk
esmark.de

Skiftedag: FredagHus H5496, Vestklitvej 26, Klegod

Nyd den skønne natur og det dejlige sommerhusområde Klegod i dette ældre og charmerende sommerhus. Det skønne sommerhus på Vesklitvej 26 blev bygget i 1973, og byder derfor på mange historier og minder. Huset blev renoveret i 2015 og kan huse jeres familie på 6. Den skønne naturgrund med panoramaudsigt over fjorden skaber dejlige rammer for en skøn ferie.

Charmerende og hyggeligt sommerhus med brændeovn

Nyd den afslappende atmosfære dette sommerhus byder på. Om det er i det dejlige rummelige køkkenalrum med et lækkert måltid, et brætspil eller et tv-program på husets fladsskærms-tv. I Køkkenalrummet vil I også møde den skønne brændeovn, som altid kan give lidt ekstra varme eller de hyggelige knitrende lyde, som er medvirkende til en hyggelig og klassisk sommerhusstemning.

Fra køkkenalrummet er der også direkte adgang til den afskærmede og overdækkede terrasse, så I kan nyde dagens første kop kaffe i selskab med dagens første solstråler. Hvis det er lidt køligere udenfor, kan du også nyde den dejlige udsigt fra stuens store vinduer.

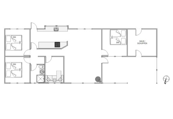
I dette sommerhus kan I folde jer ud på 3 gode soveværelser, hvoraf to har en dobbeltseng og det sidste en 3/4 seng. Og derudover finder I også et badeværelse.

Børnevenligt udeareal med gasgrill og overdækket terrasse

Hvis I ønsker at nyde det skønne danske vejr, kan I med fordel bevæge jer ud på sommerhusets skønne terrasse. Der er både en åben terrasse, hvor I kan nyde solstrålerne i husets solvogne. Ellers kan I trække jer ind i skyggen på den overdækkede og afskærmede terrasse. Her kan I sidde i læ for alt slags vejr, så I ikke går glip af udendørslivet.

Sommerhuset er placereret på et af områdets karakteristiske naturgrunde, hvor jeres hund kan slå sig løs. Og jeres børn kan hygge sig på husets gyngestativ. Til aften kan I nyde et måltid fra husets gasgrill i de komfortable havemøbler.

Det naturskønne område i sommerhusområdet Klegod

Sommerhuset ligger i det dejlige sommerhusområde Klegod, som ligger blot en god gåtur eller en kort cykeltur fra Vesterhavet. Her er der altid gode muligheder for at nyde solen om sommeren eller nyde den friske havbrise resten af året. Jeres hund er også velkommen på stranden, så den kan få brugt en masse energi og opleve et af de bedste områder for hunde.

En kort køretur kan tage jer til både den skønne ferieby Søndervig, hvor der er mange spændende butikker, restauranter og cafeer at opleve. Denne by emmer af feriestemning og afslapning, da der primært er turister i dette område, som nyder deres ferie ligesom jer.

En kort køretur i den anden retning ligger den skønne og charmerende havneby Hvide Sande. Her kan I opleve havnen i Hvide Sande, hvor størstedelen af byens butikker, restauranter og oplevelser befinder sig. I denne by kan I også booke tider til at prøve kræfter af med diverse vandsportsaktivteter som området tilbyder.

Hus info 2025

Soverum: 3  
Grundareal: 2,065 m²  
Sovepladser: 6  
Indkøb: 3500 m  
Boligareal: 85 m²
Byggeår: 1973
Strand: 900 m
Husdyr: Ja, max 1



Bestil huset nu på www.esmark.dk. Indtast husnummer H5496 i kvik søg boksen på forsiden.
 

Bestil huset nu på www.esmark.dk. Indtast husnummer H5496 i kvik søg boksen på forsiden.

23. 10. 2025