Esmark Feriehusudlejning
+45 69 15 96 11
[email protected]
esmark.dk
esmark.de

Skiftedag: SøndagHus i6640, Hafavej 61, Søndervig

På Hafavej 61 i Søndervig ligger dette sommerhus, der har en charme uden lige. Én ting er sommerhusets charme – en anden er den skønne beliggenhed. Feriehuset har nemlig en central beliggenhed i Søndervig, og så er der kun 100 meter til stranden fra sommerhuset. I sommerhuset er der plads til op til 6 personer og en enkelt hund.

Charmerende og hyggelig indretning på Hafavej 61

Fra I først træder ind i sommerhuset på Hafavej 61 i Søndervig, går der ikke længe, før I oplever den charmerende og hyggelige indretning, der sammen med det gode lysindfald skaber en skøn ferieatmosfære i sommerhuset.

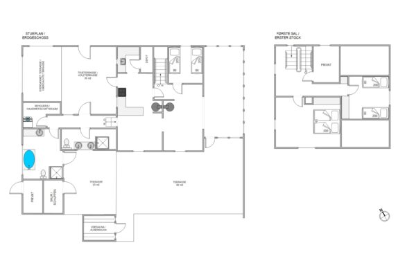
Sommerhuset på 159 kvadratmeter er indrettet i to plan, hvor der på førstesalen er 2 soveværelser med henholdsvis en dobbeltseng og 2 enkeltsenge. I stueplan finder I stue, køkkenalrum, toilet, bad, bryggers og det tredje soveværelse. Begge badeværelser er blevet renoveret i 2024 og det ene med bruser, badekar og udgang til en lukket terrasse, hvor en saunatønde står.

Både i stuen og i køkkenalrummet er der en brændeovn. Dermed vil I kunne nyde dens varme og den skønne stemning, den spreder, når I laver mad, spiser, spiller spil eller ser film. Udover brændeovnene er der også en varmepumpe, der sørger for et godt indeklima i sommerhuset på energivenlig vis.

Når I er på ferie, skal I selvfølgelig bruge ferietiden på at hygge jer og slappe af og ikke på en masse praktisk husarbejde. Derfor er der i sommerhuset opvaskemaskine, vaskemaskine og tørretumbler, der hjælper med det praktiske husarbejde.

Skønne terrasser med udesaune og dejlig beliggenhed kun 100 meter fra stranden

Sommerhuset på Hafavej 61 har flere skønne terrasser, I kan nyde de solrige feriedage fra. På terrasserne kan I læne jer tilbage i havemøbler og liggestole og bare nyde ferien, den friske luft og lyden af bølgernes brusen. Udvendigt er en opført en ny terrasse anno 2024. Der er både en terrasse der kan aflåses, er overdækket og lukket, og derudover en terrasse med et loungeområde. Om aftenen kan I tænde op i grillen og nyde en lækker middag, mens solen går ned bag klitterne. I kan også gå op på toppen af klitterne, hvorfra I kan opleve en helt fantastisk solnedgang.

Med blot 100 meter til stranden vil I på kort tid nå de brede, smukke sandstrande og de brusende, blå bølger – det er helt perfekt, når I vil ud på en gåtur eller trænger til en forfriskende dukkert i Vesterhavet. 

I bor desuden centralt i Søndervig, og I har derfor heller ikke langt, når I skal købe ind på ferien. Faktisk har I kun 600 meter til den nærmeste indkøbsmulighed. I kan dog også springe indkøb og madlavningen over og i stedet besøge byens hyggelige cafeer og restauranter.

 

Hus info 2025

Soverum: 3  
Grundareal: 1,249 m²  
Sovepladser: 6  
Indkøb: 600 m  
Boligareal: 178 m²
Byggeår: 1907
Strand: 100 m
Husdyr: Ja, max 1



Bestil huset nu på www.esmark.dk. Indtast husnummer i6640 i kvik søg boksen på forsiden.
 

Bestil huset nu på www.esmark.dk. Indtast husnummer i6640 i kvik søg boksen på forsiden.

11. 10. 2025