Esmark Feriehusudlejning
+45 69 15 96 11
[email protected]
esmark.dk
esmark.de

Skiftedag: FredagHus H5227, Kræ Degns Vej 12, Klegod

Her er et charmerende sommerhus med stråtag, hvor der er plads til 4 personer. Jeres to hunde er også mere end velkommen, og med dette sommerhus har I kun 600 meter til stranden. Desuden har sommerhuset en sauna, som I frit kan benytte, og en hems, hvor 2 af sovepladserne er placeret.  

Sommerhus 600 meter fra stranden og med sauna

Dette charmerende sommerhus befinder sig på ferieadressen Kræ Degns Vej 12. En skøn placering omgivet af Klegods smukke natur og kun 600 meter til stranden. Det kræver derfor kun en kort gåtur, og så har I nærmest fødderne begravet i sandet.
 
Hvis I ikke kan få nok af afslapning, så har sommerhuset en sauna. Her kan I nyde varmen og det ekstra velvære – så er det rigtigt ferie! Sommerhusets badeværelse er yderligere udstyret med gulvvarme.  

Lyse og hyggelige omgivelser, hvor der er styr på detaljerne

Så snart I træder indenfor, bliver I budt velkommen af de lyse og hyggelige omgivelser. Og da det er tilladt at have to hunde med i sommerhuset, kan I rigtigt nyde en ferie, hvor hele familien er samlet. Sommerhuset blev desuden renoveret i år 2020, så der er styr på alle detaljer.
 
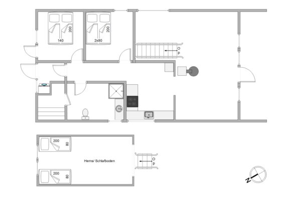
Sovepladserne er fordelt på 2 værelser med dobbeltseng og 2 enkeltmandssenge på sommerhusets hems. På hemsen kan familiens børn få lov til at have deres eget, mens de har udsigt ud over stuen og køkken. I stuen er der placeret en brændeovn, som I kan samles foran, mens I ser en god film eller spiller kort. I kan også streame jeres yndlingsserie på sommerhusets Chromecast. 

Afskærmet og delvist overdækket terrasse

Sommerhuset har en stor terrasse, som både er afskærmet og delvist overdækket. Så hvis I trænger til lidt skygge eller gerne vil sidde i læ, så er denne terrasse helt perfekt. Terrassen er selvfølgelig udstyret med diverse havemøbler og en grill. Så læn jer tilbage i liggestolene med en god bog eller et glas vin i hånden, mens der bliver tilberedt lækker aftensmad på grillen.    

Hus info 2025

Soverum: 2  
Grundareal: 2,298 m²  
Sovepladser: 4  
Indkøb: 7000 m  
Boligareal: 72 m²
Byggeår: 1973
Strand: 600 m
Husdyr: Ja, max 2



Bestil huset nu på www.esmark.dk. Indtast husnummer H5227 i kvik søg boksen på forsiden.
 

Bestil huset nu på www.esmark.dk. Indtast husnummer H5227 i kvik søg boksen på forsiden.

18. 10. 2025