Esmark Feriehusudlejning
+45 69 15 96 11
[email protected]
esmark.dk
esmark.de

Skiftedag: LørdagHus iW1152, Wolle Friks Vej 9, Søndervig

I dette hyggelige feriehus er I ikke tvivl om, at der er ferie der er på menuen. Sommerhuset emmer af den helt rigtige feriestemning og er perfekt til afslapning foran brændeovnen med en god bog eller en kop kaffe. Desuden er der en petanquebane, så der er rig mulighed for at finde feriens store petanque-mester.

Sommerhus med brændeovn og masser af feriestemning

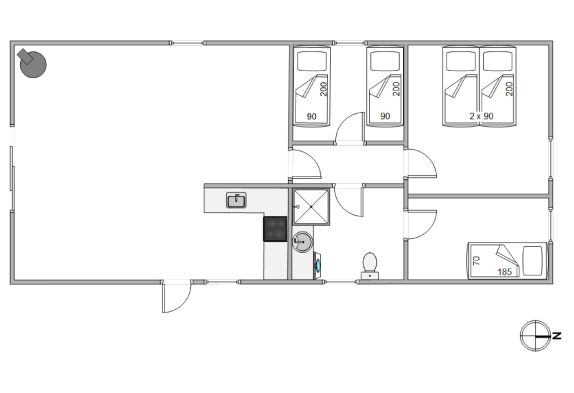
Sommerhuset er lyst og venligt indrettet, og der er helt sikkert garanti for hygge. Den store kombinerede køkken, stue– og spiseafdeling er perfekt til socialt samvær. Her kan man følge med i madlavningen, samtidig med at der hygges med et spil Ludo. Sommerhuset er fordelt på 3 soverum hvorafdet ene har dobbeltseng, og et værelse har 2 x 90 senge, mens det sidste har en slags køjeseng, som er egnet til mindre børn. 

Feriehuset er desuden udstyret med en god brændeovn. Det er perfekt at kunne nyde hyggen fra flammerne, samtidig med at I kan varme jer, hvis vestenvinden har vist tænder. Derudover rummer sommerhuset selvfølgelig en opvaskemaskine, så I ikke skal bruge ferien på at vaske op.

Sommerhus med solrig terrasse og petanquebane

Ikke mange sommerhuse har deres helt egen petanquebane, men det får I her ved sommerhuset nær Søndervig. Det er den perfekte aktivitet for hele familien, og der er utvivlsomt lagt i kakkelovnen til at finde en vinder af en petanque-turnering – og ikke mindst hvem, der skal have håneretten.

Når petanque-turneringen er veloverstået, kan I med fordel bevæge jer hen på sommerhusets sydvendte terrasse. Her kan I finde en solstråle på en af liggestolene det meste af dagen. Derudover kan kravle i skygge og læ, hvis det skulle blæse, da terrassen både er overdækket og afskærmet.

Nyd ferien i smuk vestjysk natur her på Wolle Friks Vej 9

Sommerhusets adresse på Wolle Friks Vej 9 byder på smukke naturoplevelser helt tæt på. Der er ikke langt til Vesterhavet, hvor I kan bade og gå lange ture, og heller ikke langt til gode stisystemer i smukt hede– og klitlandskab.

Nærmeste indkøb findes i feriebyen Søndervig, hvor der både kan handles i supermarked og i diverse specialbutikker. I har heller ikke langt til havnebyen Hvide Sande, hvor I kan opleve industrihavnen samt caféer, finurlige butikker og restauranter.

Hus info 2025

Soverum: 3  
Grundareal: 2,100 m²  
Sovepladser: 5  
Indkøb: 2100 m  
Boligareal: 81 m²
Byggeår: 1979
Strand: 1000 m
Husdyr: Nej



Bestil huset nu på www.esmark.dk. Indtast husnummer iW1152 i kvik søg boksen på forsiden.
 

Bestil huset nu på www.esmark.dk. Indtast husnummer iW1152 i kvik søg boksen på forsiden.

11. 10. 2025