Esmark Feriehusudlejning
+45 69 15 96 11
[email protected]
esmark.dk
esmark.de

Skiftedag: FredagHus H5841, Lyngsletten 7, Klegod

På Lyngsletten 7 i Klegod finder I dette moderne, lystindrettede sommerhus til 6 personer. Huset er bygget i 2019 og skaber de bedste rammer for jer på jeres ferie med både sauna, spa, brændeovn og masser af muligheder for udendørs leg til børnene.

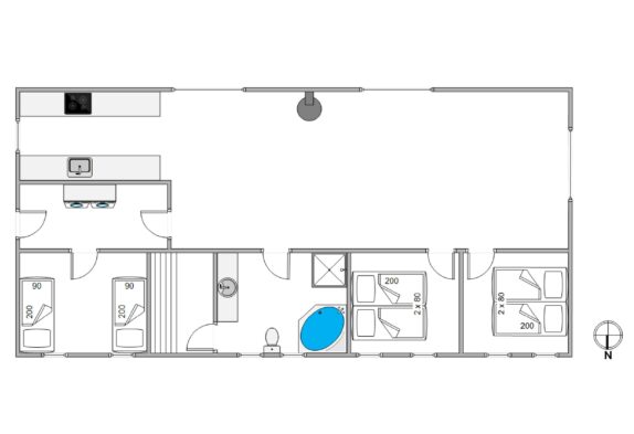
God plads og åben indretning i skandinavisk stil

Hjertet af huset er det åbne køkken-alrum. Med højt til loftet og masser af lysindfald er her plads til, at hele familien kan være samlet. I kan spille brætspil ved det store spisebord eller hygge med en god film på den store hjørnesofa, mens varmen fra brændeovnen spreder sig efter en god dag i det vestjyske. Fjernsynet er tilkoblet en Chromecast, så I kan streame lige det I har lyst til.

Det topmoderne køkken er rummelig og veludstyret. Den åbne forbindelse til resten af huset sørger igen for, at alle i huset kan hygge sammen, mens køkkenprinser og prinsesser tryller i køkkenet. Opvasken klarer opvaskemaskinen selvfølgelig. Skulle der blive spildt tomatsovs er der både vaskemaskine og tørretumbler i entreen.

Badeværelset er et sandt wellnessområde. Her kan I glemme hverdagens stress og jag, mens I tager jer et velfortjent bad i spabadet eller nyder husets sauna. De mørke fliser står i kontrast til de lyse møbler i badeværelset og giver dermed et flot og moderne sammenspil i det lækre wellnessområde.

Afskærmet terrasse og stor græsplæne

Den lækre træterrasse strækker sig hele vejen rundt om huset. Her kan I følge solen rundt i liggestolene. Sydsiden af terrassen er afskærmet, så I kan sidde og nyde jeres lækre grillmad i læ. Børnene behøver på ingen måde at kede sig i ulvetimen. På den store græsplæne er der både gyngestativ med rutsjebane, trampolin og fodboldmål. Masser af plads til at boltre sig på for børn og barnlige sjæle.

Klegod ligger i nærheden af Søndervig, hvor der er mange butikker, restauranter og caféer at gå på opdagelse i. Efter en kort gåtur er I på den kilometerlange strand ved det brusende Vesterhav.

Hus info 2025

Soverum: 3  
Grundareal: 2,154 m²  
Sovepladser: 8  
Indkøb: 2800 m  
Boligareal: 120 m²
Byggeår: 2019
Strand: 1000 m
Husdyr: Nej



Bestil huset nu på www.esmark.dk. Indtast husnummer H5841 i kvik søg boksen på forsiden.
 

Bestil huset nu på www.esmark.dk. Indtast husnummer H5841 i kvik søg boksen på forsiden.

19. 10. 2025