Esmark Feriehusudlejning
+45 69 15 96 11
[email protected]
esmark.dk
esmark.de

Hus 50812, Nordvej 11- 12, Vejers

Dette lille, men fine rækkehus på den populære adresse Norvej 11 ved Vejers Strand er det perfekte sted for den lille familie – gerne medbringende en hund. Her kan I sammen med jeres børn og familiens hund få et dejligt afbræk fra hverdagen og holde en skøn ferie ved Vesterhavet. 

Fælles pool og strandnær beliggenhed

Her er der masser af highlights til den bedste tid på året – ferietiden. I bor super tæt ved stranden og i gåafstand til Vejers Strands spise- og shoppingsteder. Det, forbundet med muligheden for hver dag at hoppe i den fælles pool, er noget af det, der gør denne adresse så attraktiv.

Feriehjemmet byder på flere muligheder for en aktiv og underholdende ferie. Ikke kun med den fantastiske beliggenhed, men også med den frie entré til feriecentrets indendørs swimmingpool, som kan benyttes hele året rundt. Her kan ungerne lege sig trætte på en regnfuld dag.

I fællesrummet ved poolen finder du et ekstra rum med sauna og vaskemaskine, disse faciliteter kan du benytte efter først til mølle princippet mod betaling af gebyr. Derudover er der et aktivitetsrum med bordtennisbord, hvor I kan tilbringe mange timer sammen. 

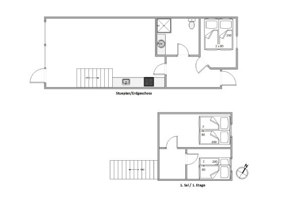
Jeres feriedomicil består af 2 soverum, et bad og det klassiske åbne stue-køkken område, hvor der kan hygges med fælles madlavning, en god film, familiespil eller måske med en god bog på sofaen – evt. afløst af lidt surfen på nettet, her er naturligvis gratis internet. Et af soverummene befinder sig på 1. sal.

Afskærmet terrasse med sol og læ

Fra stuen er der udgang til den afskærmede terrasse, som er det perfekte sted, at sætte sig til rette, lægge fødderne op og bare slappe af. Efter en lang dag med masser af frisk havluft og kilometer lange traveture med hunden langs stranden er der ikke noget skønnere end at åbne op ud til terrassen, finde en plads i læ og bare at slappe af og lade dagen gå på hæld med en kop te eller en kølig drink.

Vejers Strand, en lille perle direkte ved havet

Vejers Strand er en idyllisk lille by direkte ved havet. Her er der liv i gaden det meste af året, uden at det bliver for crowded: En legeplads, et par små spisesteder, et par supermarkeder og butikker og ellers en kilometer lang sandstrand, der er delt op i en bilstrand og et bilfrit område. Fantastisk natur, med klitter, lynghede, skov og et fantastisk dyreliv, – især muligheden for at se kronhjorte – gør Vejers til det perfekte sted for hele familien, og til et sted, man gerne besøger flere gange.

Hus info 2026

Soverum:   
Grundareal: 0 m²  
Sovepladser:   
Indkøb: m  
Boligareal:
Byggeår:
Strand: m
Husdyr: Ja, max



Bestil huset nu på www.esmark.dk. Indtast husnummer 50812 i kvik søg boksen på forsiden.
 

Bestil huset nu på www.esmark.dk. Indtast husnummer 50812 i kvik søg boksen på forsiden.

5. 04. 2026